- Общее
- Парковка
Инфраструктура - Коммерческие условия
| Округ | Северо-западный |
| Класс | B |
| Тип здания | Офисная недвижимость |
| Общая площадь | 6000 м2 |
| Этажность | 9 |
| Кондиционирование | Центральное |
| Система пожаротушения | Спринклерная |
| Вентиляция | Приточно-вытяжная |
| Провайдер | Ростелеком, МТС, Меганет, Релком |
| Видеонаблюдение и Охрана | есть |
| Наземная парковка | 9 000 руб, вкл. НДС |
| Подземная парковка | 13 500руб. вкл. НДС |
| Парковочный коэффициент | 1/60 |
| Операционные платежи | операционные расходы включены в арендную ставку |
| Коммунальные платежи | включены в арендную ставку |
Аренда офисных помещений
Этаж
Метраж
Стоимостьв месяц
Цена зам2 в год
Фотоблока
Характеристики
| Состояние | С отделкой |
| OPEX | Включены в ставку |
Характеристики
| Состояние | С отделкой |
| OPEX | Включены в ставку |
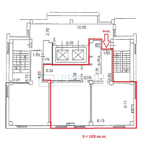
| Смешанная планировка |
Описание
Описание: Здания технопарка "Орбита" оснащены всем необходимым для эффективного функционирования: системой центрального отопления, системой вентиляции, системой пожарной сигнализации, электроснабжением, оптоволоконными телекоммуникациями, водоснабжением, канализационной системой, радио и телефонными линиями, мебелью и оборудованием для очистки воды. Комплекс расположен на площади примерно в 22 000 кв. метров и состоит из 7 зданий.Расположение: Офисное здание класса В расположено на территории технопарка "Орбита". Станция метро Строгино находится в 2 минутах ходьбы. Расположение обеспечивает удобную транспортную доступность на МКАД, Волоколамское и Новорижское ш., аэропорт Шереметьево.
интересует помещение?
Заполните заявку или позвоните по телефону +7 (495) 777-15-15 и консультанты ответят на ваши вопросы и назначат просмотр
Объекты рядом
Портфолио сделок
- Клиент: ЦОКР
- Марксистская ул, д 14/16 стр 1, Москва
- Площадь 1735.9 м2
- Клиент: МедиаМаркт
- Симонов Плаза
- Площадь 62500 м2





