- Общее
- Парковка
Инфраструктура - Коммерческие условия
| Округ | Южный |
| Класс | B+ |
| Тип здания | Офисная недвижимость |
| Общая площадь | 23591 м2 |
| Этажность | 11 |
| Кондиционирование | Центральное |
| Система пожаротушения | Спринклерная |
| Вентиляция | Приточно-вытяжная |
| Провайдер | Бигфут Телеком |
| Видеонаблюдение и Охрана | есть |
| Парковочный коэффициент | 1/65 |
| Операционные платежи | 4100р., операционные расходы оплачиваются дополнительно |
| Коммунальные платежи | оплачиваются дополнительно |
Продажа офисных помещений
Этаж
Метраж
Стоимостьв месяц
Цена за м2
Назначение
Фотоблока
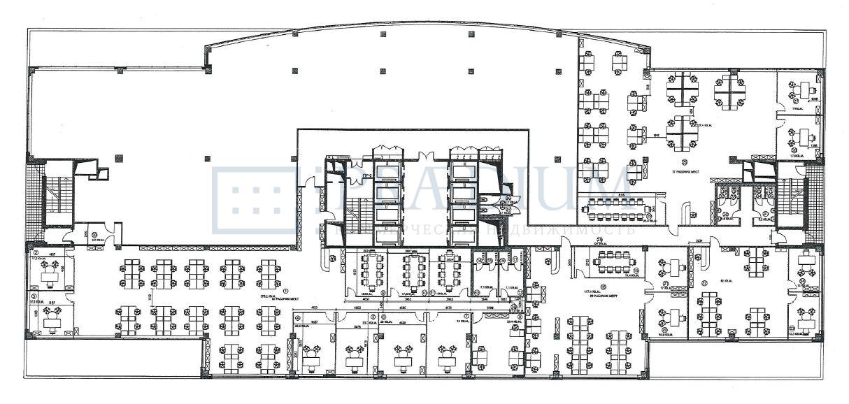
Характеристики
| Состояние | С отделкой |
| Высота потолков, м | 3.3 |
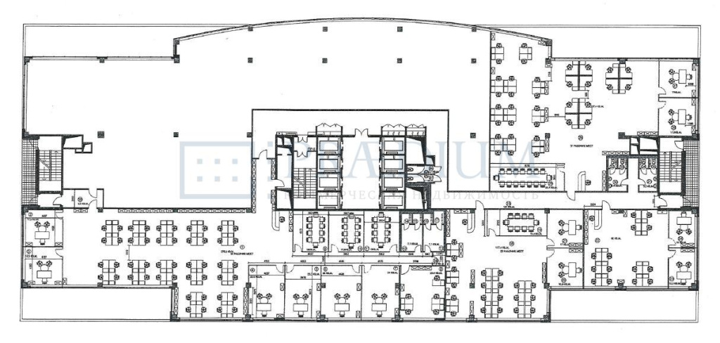
Характеристики
| Состояние | С отделкой |
| Высота потолков, м | 3.3 |
Описание
Описание: Технопарк "NAGATINO i-LAND" который возводится в несколько очередей строительства, расположится на территории 31,6 Га. В настоящее время завершено строительство, и идет реализация корпусов I очереди. Общая площадь строений I очереди, включающей 6 офисных зданий и два 9-уровневых здания парковки на 1478м/м - около 216 000 кв.м., общая офисная площадь - 170 000 кв.м. Несущий каркас всех зданий - монолитный железобетон, витражное остекление.
Бизнес-центр "Ломоносов" - это 11-этажное отдельно стоящее здание. Конструктивные особенности: шаг колонн 8,4 х 8,4 м., высота этажей - 3,3 м., высота первого этажа - 4,3 м., допустимые нагрузки на перекрытия - 400 кг./кв.м.Расположение: Комплекс находится всего в 8 км. к югу от Кремля, в 1,8 км. от ТТК, в 4,5 км от Садового кольца и в 100 м. от пр-та Андропова - основной магистрали района, ведущей к Каширскому ш. и международному аэропорту "Домодедово". Ближайшая ст. метро "Технопарк".
интересует помещение?
Заполните заявку или позвоните по телефону +7 (495) 777-15-15 и консультанты ответят на ваши вопросы и назначат просмотр
Объекты рядом
Портфолио сделок
- Клиент: World Class
- Ямъ Плаза
- Площадь 5446.9 м2
- Клиент: Оптовая турецкая компания по продаже текстильной продукции
- Котляковская ул.
- Клиент: Глосав
- Воробьёвский
- Площадь 16000 м2
















