Старосаврасовская ул, д 2, Москва, р-н Коммунарка,
Путь
Аренда офисных помещений
Наличие вакантных площадей уточняйте, пожалуйста, по телефону или оставьте заявкуПродажа офисных помещений
|
|||||||||||||||||||||||||||||||||||||||||||||||||||||||||||||||||||||||||||||||||||||||||||||||||||||||||||||||||||||||||||||
|
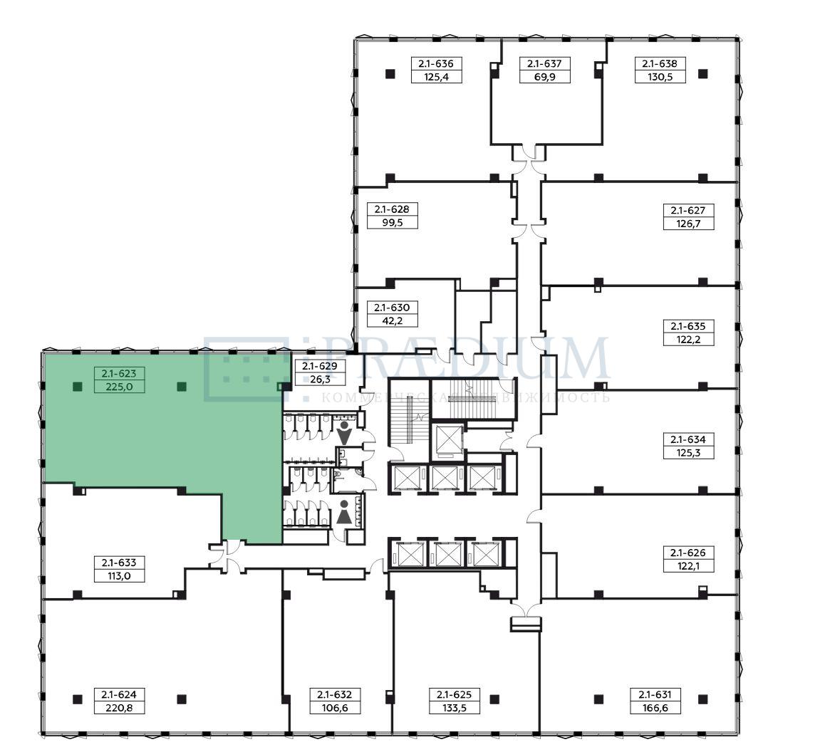
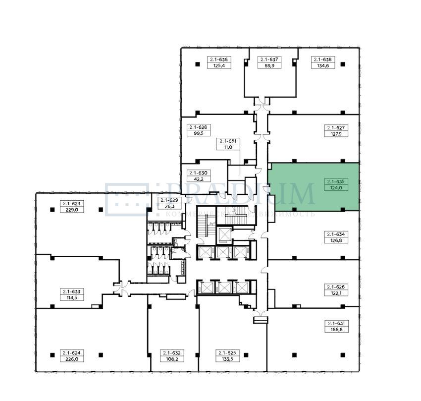
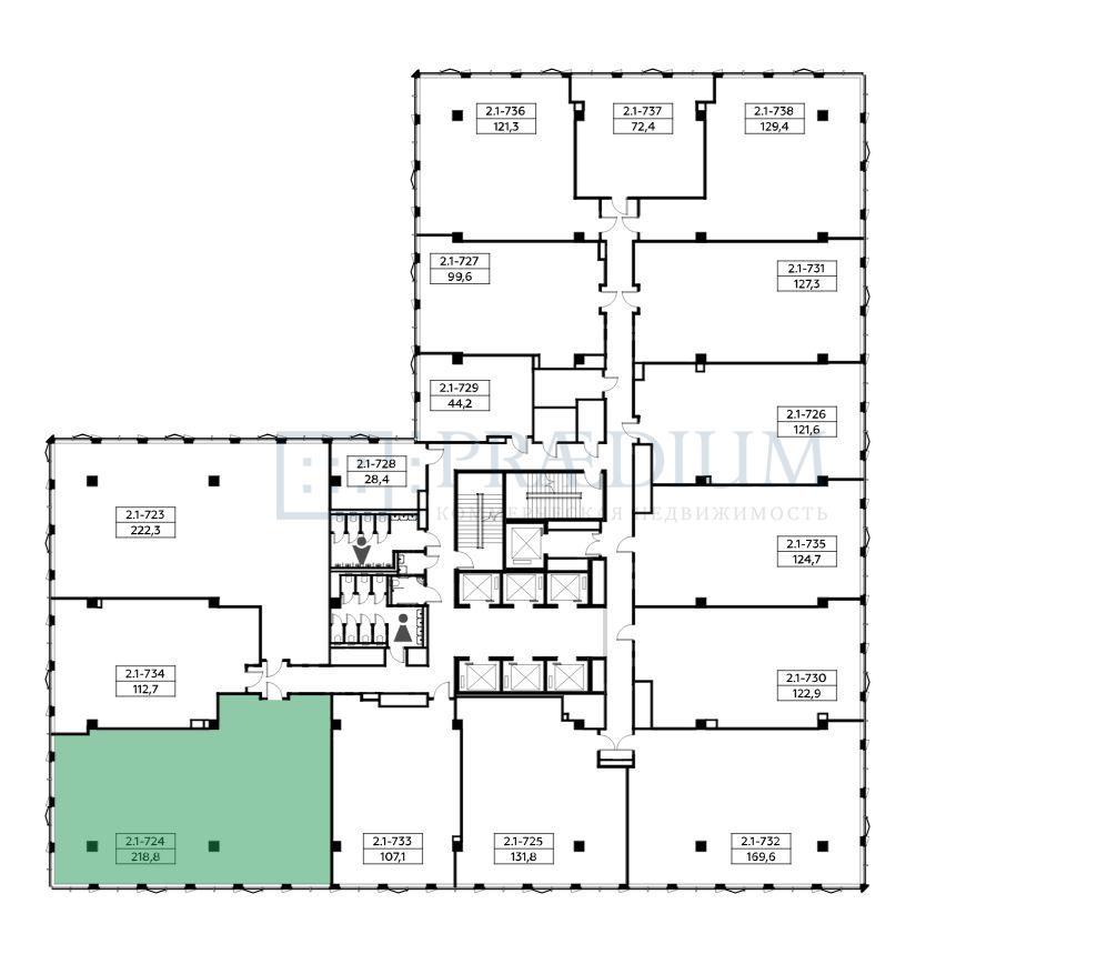
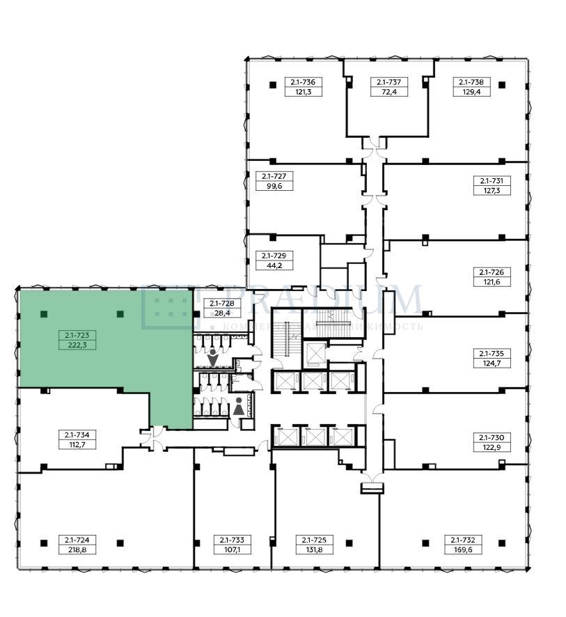
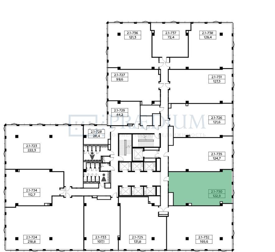
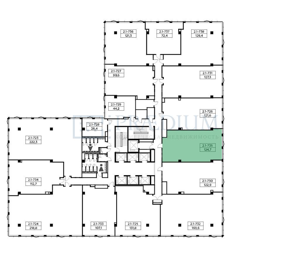
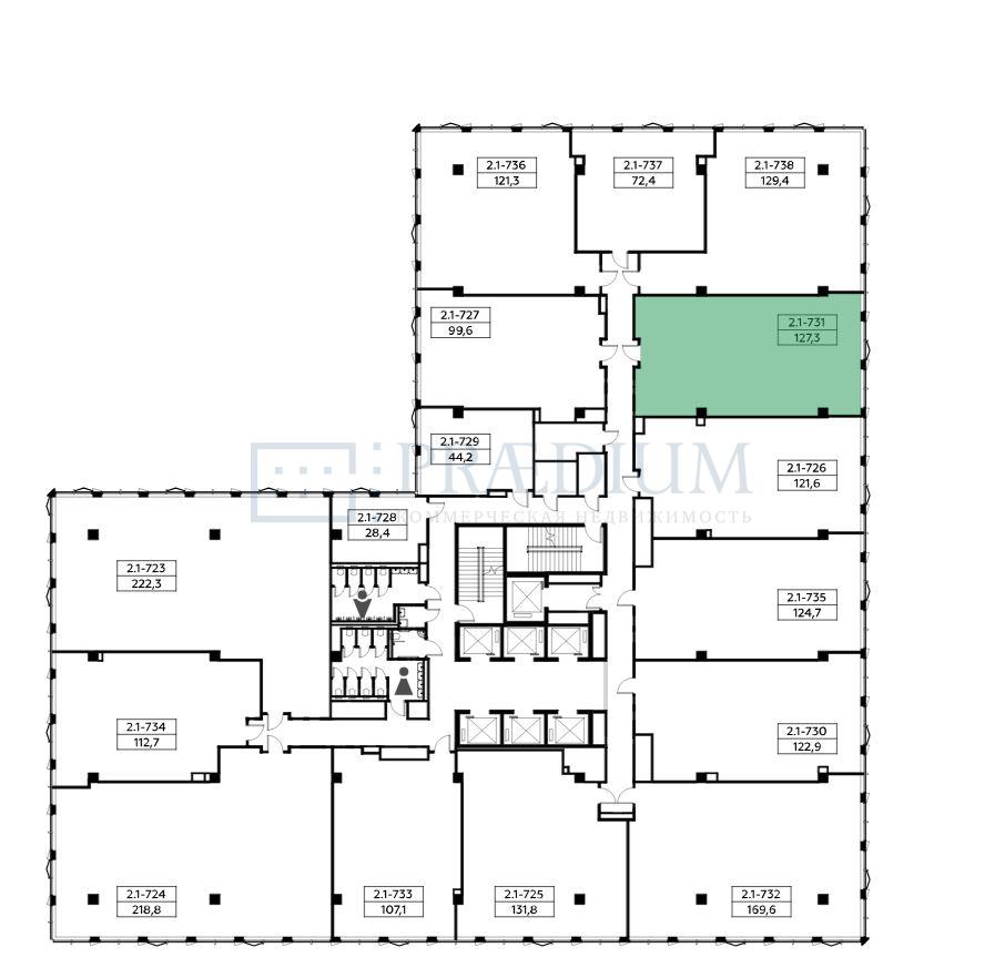
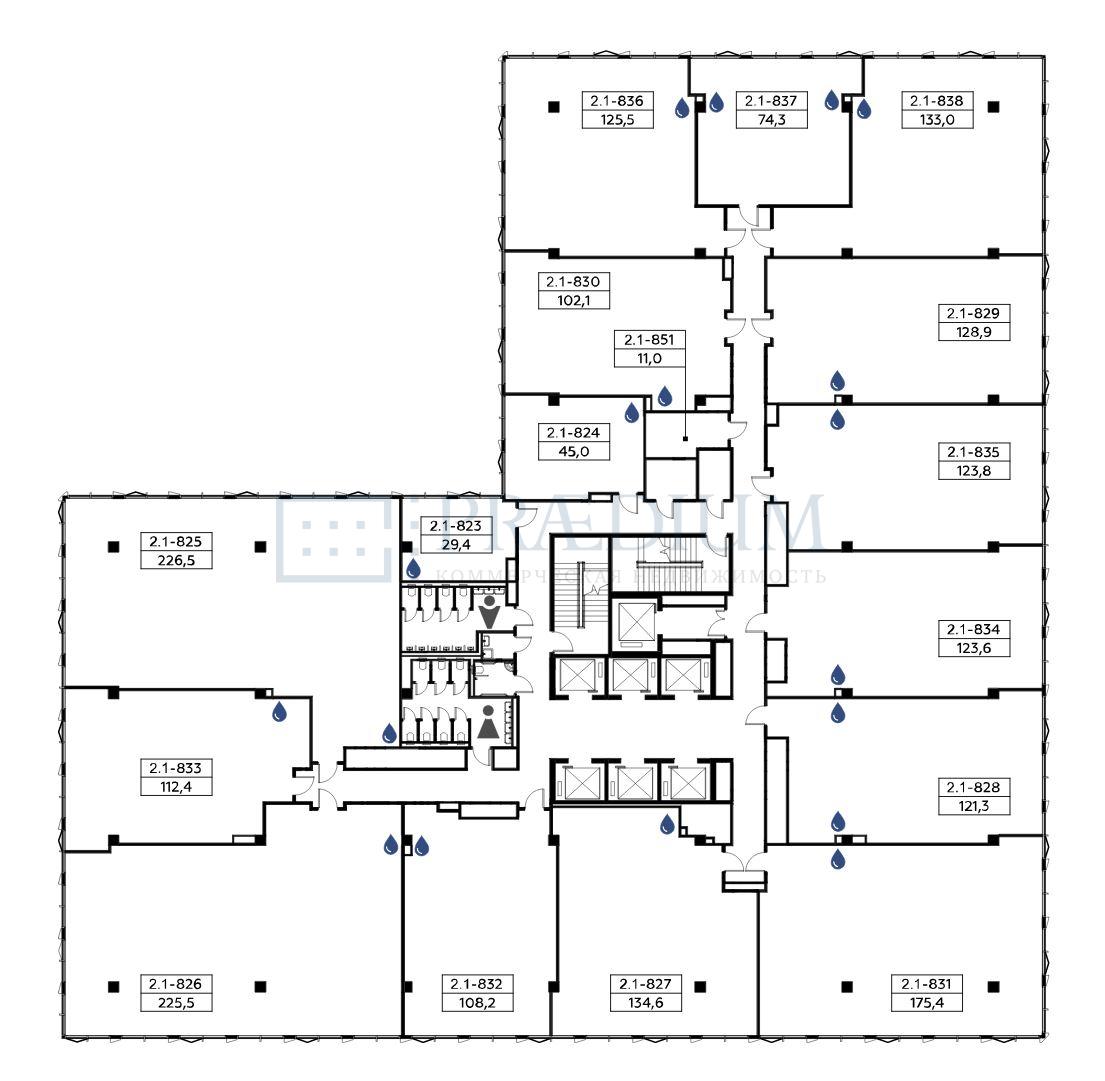
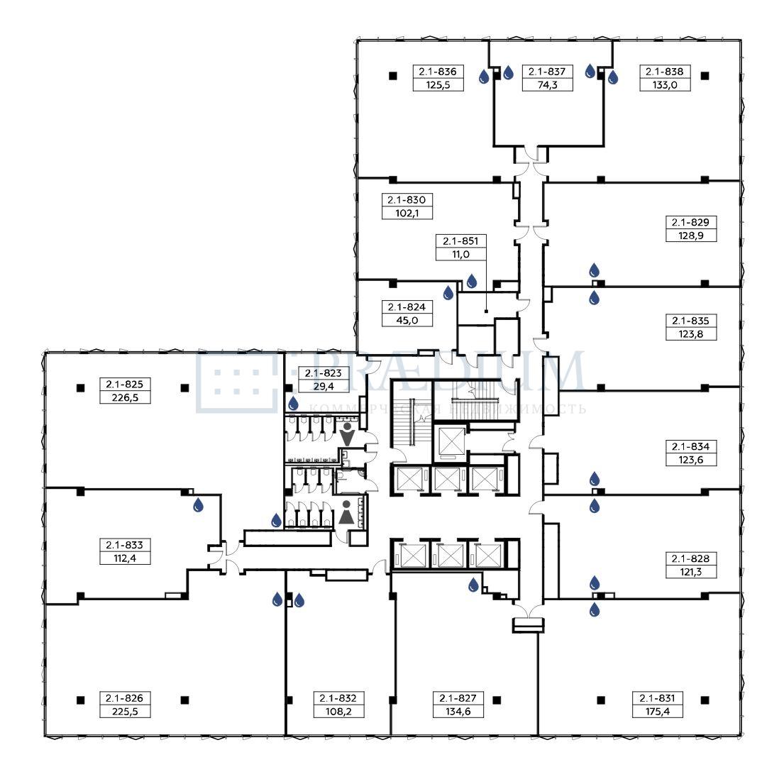
О бизнес-центре
Описание: В комплекс входят :
- 42 000 кв.м. Торгово-офисный центр
- 5 офисных зданий
- жилые и социальные объекты
-177 000 кв.м. общая площадь комплекса
| Класс | A |
| Общая площадь | 177000 |
| Этажность | 16 |
| Провайдер | коммерческий |
| Эксплуатационные платежи |
По дополнительным вопросам и организации просмотров, пожалуйста, обращайтесь к консультанту по объекту: +7 (495) 777 15 15
Портфолио сделок
Аренда офиса 872 кв.м.
- Клиент: Глосав
- Воробьёвский
- Площадь 16000 м2
Аренда офиса 980 кв.м.
- Клиент: МедиаМаркт
- Симонов Плаза
- Площадь 62500 м2
Аренда офиса 1574 кв.м
- Клиент: Магнит
- РТС Варшавский
- Площадь 18840 м2









































































































































































































































































































