Ленинградский пр-кт, д 80 стр 37, Москва
Сокол (5 мин. пеш.)
Путь
- Общее
- Парковка
Инфраструктура - Коммерческие условия
| Класс | C |
| Тип здания | Офисная недвижимость |
| Этажность | 12 |
| Кондиционирование | Центральное |
| Система пожаротушения | Спринклерная |
| Вентиляция | Приточно-вытяжная |
| Провайдер | СОТЕЛ |
| Видеонаблюдение и Охрана | есть |
| Наземная парковка | 300 м/м, 8 000 руб., вкл НДС |
| Операционные платежи | операционные расходы включены в арендную ставку |
| Коммунальные платежи | оплачиваются дополнительно |
Аренда офисных помещений
Этаж
Метраж
Стоимостьв месяц
Цена зам2 в год
Назначение
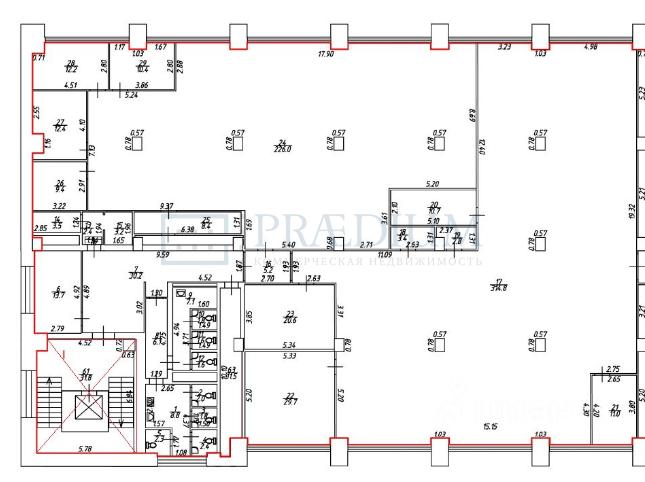
Фотоблока
5
745.70
1 553 542 р.
25 000 р.
-
Характеристики
| Состояние | С отделкой |
| OPEX | Включены в ставку |
| Коммунальные платежи | По факту |
| Смешанная планировка | |
| Высота потолков, м | 4 |
Описание
Описание: Вторая линия зданий.Высота потолка - 3,7 м. В здание подведены все необходимые системы жизнеобеспечения, включая электроснабжение, водоснабжение, систему канализации, отопления, вентиляции, дымоудаления и пожаротушения.Расположение: Расстояние до основных магистралей города: ТТК- 4.1 км., МКАД- 8.05км. Рядом прилегают улицы Балтийская, Часовая.
интересует помещение?
Заполните заявку или позвоните по телефону +7 (495) 777-15-15 и консультанты ответят на ваши вопросы и назначат просмотр
Согласен на обработку персональных данных
По дополнительным вопросам и организации просмотров, пожалуйста, обращайтесь к консультанту
по объекту: +7 (495) 777 15 15
Объекты рядом
Портфолио сделок
Продажа офиса 1437 кв.м.
- Клиент: НИРИТ-СИНВЭЙ Телеком Технолоджи
- Лотос, башня С
- Площадь 29450 м2
Аренда офиса 1682 кв.м.
- Клиент: Новый киноколледж
- Красный октябрь
- Площадь 35000 м2
Аренда офиса 2456 кв.м.
- Клиент: World Class
- Ямъ Плаза
- Площадь 5446.9 м2






